マンション ライオンズヒルズ牛田早稲田
所在地
広島市東区牛田早稲田4丁目
1,280万円
66.61m²
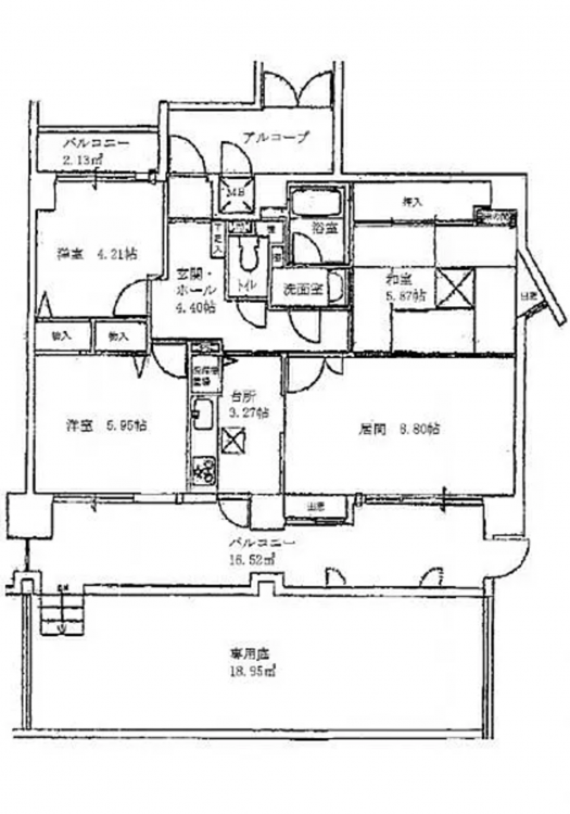
3LDK
🍀閑静な住宅街にある眺望🌸
◆広島牛田早稲田団地郵便局 約918m/徒歩12分
◆ローソン広島女学院大学前 約1360m/徒歩17分
◆サンベルモ 約1470m/徒歩19分
◆ショージ牛田店 約1710m/徒歩22分
物件概要
- 交通
-
バス停牛田早稲田団地 まで 徒歩8分
アストラム 白島駅 まで 徒歩39分
アストラム 牛田駅 まで 徒歩35分
- 専有面積
- 壁芯 66.61㎡
- バルコニー
- 18.65㎡
- 所在階/階数
- 1階/14階
- 築年数
-
1991年
(平成3)
10月
築34年 - 建ぺい率
- 容積率
- 土地権利
- 所有権
- 構造および階数
- SRC(鉄骨鉄筋コンクリート) 造 地上14階建
- 小学校区
- 早稲田 (457m)
- 中学校区
- 早稲田 (937m)
- 地目
- 現況
- 空
- 引渡時期
- 即時
- 駐車場
- 空有
- 駐車場月額
- 9,000円/月
- 管理形態
- 全部委託
- 管理方式
- 管理人日勤
- 管理会社
- 株式会社大京アステージ
- 管理費
- 8,500円
- 修繕積立費
- 16,290円
- 上水道
- 公共
- 下水道
- 公共
- ガス
- 都市ガス
- 都市計画
- 用途地域
- 1種中高
- 設備・条件
- システムキッチン、シャンプードレッサー、洗浄便座、オートロック、角部屋、エレベーター
- 備考
-
◆専用庭面積:18.95㎡
◆駐車場:2台目可
◆平成31年3月大規模修繕工事施工:外壁、屋根、バルコニー、開放廊下
- 取引態様
- 仲介



