新築一戸建て 広島市東区中山上2丁目3号棟
所在地
広島市東区中山上2丁目3号棟
3,580万円
30.43坪
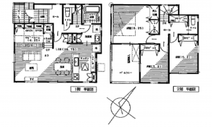
4LDK
🍀オール電化、エコキュート、駐車場も2台停められます🌸
◆ローソン 広島戸坂新町店 845m/徒歩11分
◆マックスバリュフォレオ広島東店 1620m/徒歩20分
物件概要
- 交通
-
バス停中山上町 まで 徒歩3分
芸備線 矢賀駅 まで 徒歩29分
- 接道状況
- 西側 私道4.2m
- 土地面積
- 132.63㎡ (40.12坪)
- 建物面積
- 100.60㎡ (30.43坪)
- 築年数
- 2025年 (令和7) 10月
- 建ぺい率
- 60%
- 容積率
- 168%
- 土地権利
- 所有権
- 構造および階数
- 木造 地上2階建
- 小学校区
- 中山 (1182m)
- 中学校区
- 二葉 (2864m)
- 私道負担
- なし
- 地目
- 現況
- 引渡時期
- 即時
- 駐車場
- 上水道
- 公共
- 下水道
- 公共
- ガス
- 都市計画
- 市街化区域
- 用途地域
- 1種住居
- 建築確認番号
- R07認広建セ00074号
- 設備・条件
- システムキッチン、食器洗浄乾燥機、IHクッキングヒーター、オール電化、洗浄便座、浴室乾燥機、複層ガラス、ルーフバルコニー、モニタ付インターホン、駐車場2台分、床下収納、トイレ2箇所、省エネルギー対策 / フラット35Sに対応 / 全居室収納 / パントリー(食器・食品の収納庫)
- 備考
- ◆外壁 光セラ(KMEW)
- 取引態様
- 仲介



