新築一戸建て 安芸郡府中町本町2丁目
所在地
安芸郡府中町本町2丁目
5,280万円
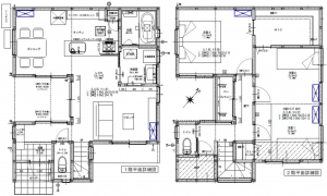
26.92坪
3LDK
🍀人気エリア😊府中町大通の新築です🌸
物件概要
- 交通
-
バス停府中埃宮 まで 徒歩4分
山陽線 天神川駅 まで 徒歩17分
芸備線 矢賀駅 まで 徒歩17分
- 接道状況
- 南東側 私道4m 間口約8.4m
- 土地面積
- 公簿 106.26㎡ (32.14坪)
- 建物面積
- 89.01㎡ (26.92坪)
- 築年数
- 2025年 (令和7) 11月
- 建ぺい率
- 60%
- 容積率
- 160%
- 土地権利
- 所有権
- 構造および階数
- 木造 地上2階建
- 小学校区
- 府中
- 中学校区
- 府中
- 私道負担
- あり
- 地目
- 宅地
- 現況
- 空
- 引渡時期
- 即時
- 駐車場
- 有
- 上水道
- 公共
- 下水道
- 公共
- ガス
- 都市計画
- 市街化区域
- 用途地域
- 1種住居
- 建築確認番号
- 第R06認広建セ02841号
- 設備・条件
- 備考
-
◆太陽光4.08kw+蓄電池6.5kw搭載
◆テラス
◆間口:約8m(駐車の為の持分共有あり)
◆位置指定道路(S38.7.22第49号 - 取引態様
- 仲介



