新築一戸建て 広島市東区福田6丁目
所在地
広島市東区福田6丁目
2,180万円
29.82坪
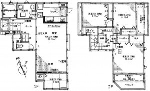
3SLDK
🍀70坪以上の土地に建つオール電化新築戸建です🌷
◆セブンイレブン広島福田店 160m/徒歩2分
◆ウォンツ福田店 260m/徒歩4分
◆ファミリーマート福田七丁目店 350m/徒歩5分
◆ユアーズ福田店 800m/徒歩10分
◆ノムラストアー馬木店 2600m/徒歩33分
物件概要
- 交通
-
バス停大平 まで 徒歩3分
- 接道状況
- 西側3.2m
- 土地面積
- 247.73㎡ (74.93坪)
- 建物面積
- 98.60㎡ (29.82坪)
- 築年数
-
2025年
(令和7)
4月
築1年 - 建ぺい率
- 50%
- 容積率
- 100%
- 土地権利
- 所有権
- 構造および階数
- 木造 地上2階建
- 小学校区
- 福木 (1600m)
- 中学校区
- 福木 (1300m)
- 私道負担
- 地目
- 現況
- 引渡時期
- 相談
- 駐車場
- 有
- 上水道
- 公共
- 下水道
- 浄化槽集中
- ガス
- 都市計画
- 用途地域
- 1種低層
- 設備・条件
- オール電化、エコキュート
- 備考
-
◆水道負担金・住宅瑕疵保険料別途20万円要
- 取引態様
- 仲介



